Call Us Today

23 Church Street,
Dungarvan, Co. Waterford
Call Now: +353-87-6294754

Old Garage Site, Kilmacthomas, Waterford

Development Land For Sale

Guide: €195,000

For Sale

Property Description

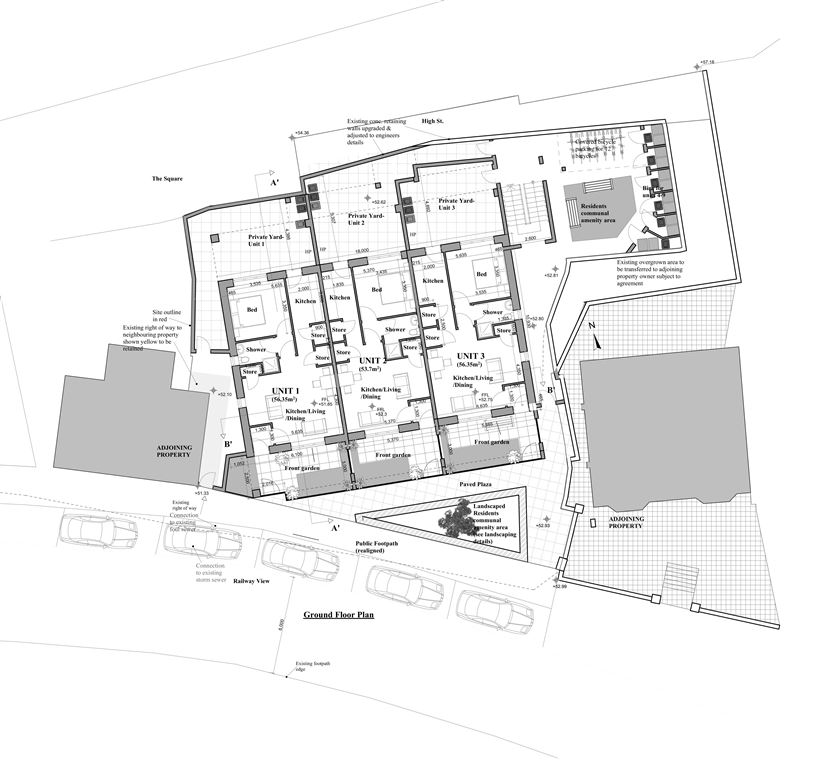
Development Site, Kilmacthomas, Co. Waterford.

Site Sale with full planning Permission for 9 Units.

Ground Floor

Unit 1 (55.34) m2 – 1 Bedroom unit with external yard.
Unit 2 (48.15) m2 – 1 Bedroom with unit with external yard.
Unit 3 (73.32) m2 – 2 Bedroom with unit with external yard.

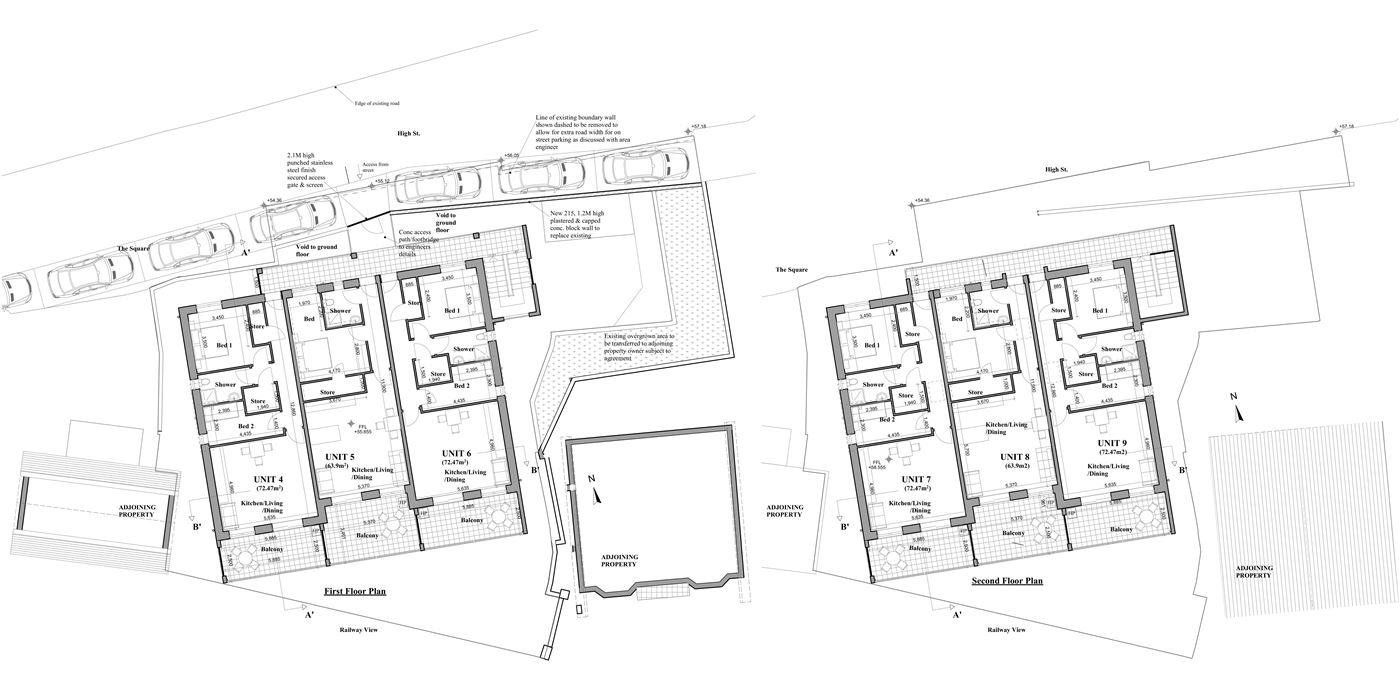
First Floor

Unit 4 (73.32) m2 – 2 Bedroom with unit.
Unit 5 (48.15) m2 – 1 Bedroom unit with balcony.
Unit 6 (55.34) m2 – 1 Bedroom unit with balcony.
Unit 10 (66.45) m2 – 2 Bedroom unit with external yard.

Second Floor Plan

Unit 7 (55.34) m2 – 1 Bedroom unit with balcony.
Unit 8 (50.68) m2 – 1 Bedroom unit with balcony.
Unit 9 (78.54) m2 – 2 Bedroom unit with balcony.


BER Details

BER: A2


Location Map

Website by: Déise Design